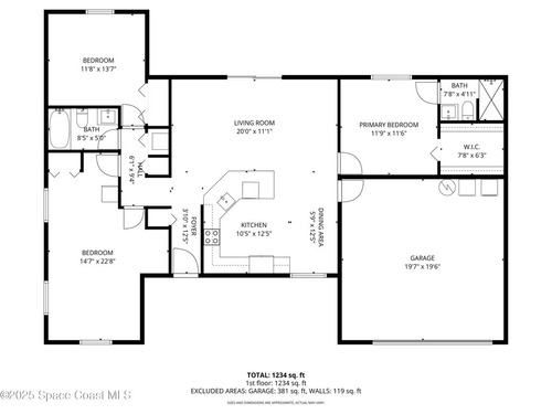
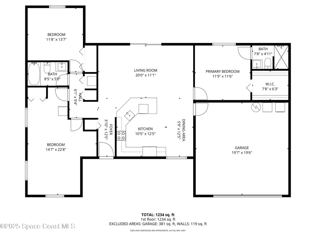
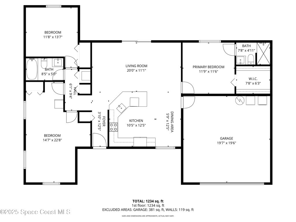
Charming 3-bedroom, 2-bath home with a 2-car garage - READY for new owners! Step inside to an inviting open floor plan featuring vinyl plank flooring throughout the main living areas, a newly RENOVATED kitchen with quartz countertops, and split bedrooms for added privacy. Volume ceilings throughout.. Both bathrooms have been tastefully updated, offering a modern and fresh feel. Major improvements provide peace of mind, including a 2024 Roof, 2025 Water Heater, 2022 AC, and a whole-house filtration system. Outside, enjoy a covered patio, fully FENCED YARD and a 10 x 16 shed with roll-down shutters--perfect for storage, hobbies, or extra workspace. This home blends comfort, style, and functionality in one perfect package. Schedule your showing today!
Essential Information
Year Built: 1986
Price: $275,000
Property Type: Residential
Area: 1,296 sqft.
Country: USA
City: Palm Bay
Bedrooms: 3
Bathrooms: 2.00
Additional Property Info
Community Fees: No
Construction: Frame
Cooling: Central Air and Electric
Equipment/Appliances: Dishwasher, Double Oven, Electric Range, Electric Water Heater, Microwave, Other and Refrigerator
Floor: Laminate and Tile
Furnished: Unfurnished
Heat: Central
Interior Features: Breakfast Bar, Ceiling Fan(s), Eat-in Kitchen, Primary Bathroom - Shower No Tub, Primary Downstairs and Split Bedrooms