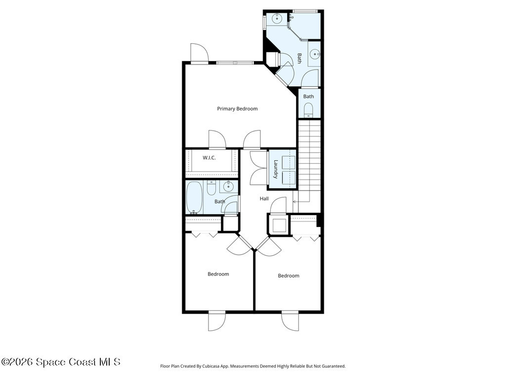
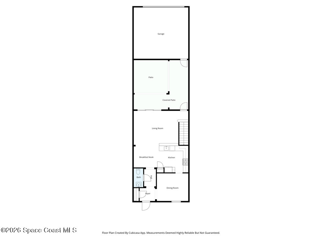
Experience maintenance-free living in this beautifully maintained 3-bedroom, 2.5-bath Sonesta model townhome with a 2-car garage in highly desirable Stadium Villas. This two-story home offers peaceful pond views, a charming front porch, and a private second-floor balcony. The first floor features tile flooring, a formal dining area, half bath, breakfast bar, and a kitchen with stainless steel appliances. The spacious great room opens to a private, fully enclosed courtyard perfect for relaxing or entertaining. Upstairs, the primary suite offers double sinks, walk-in closet, and balcony overlooking the courtyard, along with two additional bedrooms, full bath, and laundry closet with washer and dryer. Impact windows, tankless water heater & digital thermostat are a few other key features. Community amenities include a pool, cabana, picnic area, grills, & dog park. Excellent investment opportunity with strong rental history & previously rented at $2,900 per month. HOA fees $428 per month.
Essential Information
Year Built: 2018
Price: $412,000
Property Type: Residential
Area: 1,692 sqft.
Country: USA
City: Rockledge
Bedrooms: 3
Bathrooms: 3.00
Additional Property Info
Assoc/HOA Contact: Stadium Villas District Association, Inc.
Community Fees: No
Construction: Block, Concrete, Frame and Stucco
Cooling: Central Air, Electric and Split System
Dwelling View: Pond
Equipment/Appliances: Dishwasher, Dryer, Gas Range, Gas Water Heater, Microwave, Refrigerator and Washer
Exterior Features: Balcony and Other
Floor: Laminate, Tile and Wood
Furnished: Unfurnished
Heat: Central, Electric and Hot Water
Interior Features: Breakfast Bar, Ceiling Fan(s), Open Floorplan, Primary Bathroom - Shower No Tub and Walk-In Closet(s)
List Price/SqFt: $243.50 / sqft
Listing ID: 1065058
Listing Status: Active
Lot Description: Other
Lot SqFt: 2,178 sqft
Parking: Attached, Garage and Garage Door Opener
Pool: No
Possession: Close Of Escrow
Private Pool: No
Property Type: Residential
Rental Restrictions: 6 Months
Residential Sub-Type: Townhouse
Road Surface: Asphalt,Paved
Roof: Tile
Rooms: Bathroom 2, Bathroom 3, Bedroom 2, Bedroom 3, Dining Room, Kitchen, Laundry, Living Room, Other Room, Primary Bathroom and Primary Bedroom
Security/Safety: Smoke Detector(s)
Showing: Call Listing Agent,Lockbox,Showing Service
Sold Terms Code: Cash,Conventional,FHA,USDA Loan,VA Loan