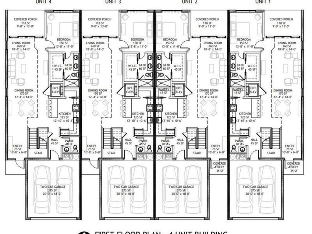
NEW CONSTRUCTION: 16 Luxury Riverfront Residences in your Tranquil, Gated Community with a Rooftop Observation Courtyard complete with elevator. Embrace a Lifetime of Sunrises, Sunsets & Soothing Ocean/River breezes. Your community enjoys 225 feet of direct river front with 380 foot private dock with boats slips/lifts available. 4 Luxurious Floor Plans, Meticulous Modern Design, All Concrete Construction, Impact Glass, High End Appliances & Finishes, 2 Car garage, Covered Lanai & 2nd Floor Balcony. Pics are Artist rendering. Sizes approx/subj to err. Prices subj. to change.
Essential Information
Year Built: 2026
Price: $1,995,000
Property Type: Residential
Area: 2,579 sqft.
Country: USA
City: Sebastian
Bedrooms: 3
Bathrooms: 3.00
Additional Property Info
Community Fees: No
Construction: Block and Concrete
Cooling: Central Air and Electric
Furnished: Unfurnished
Heat: Central and Electric
List Price/SqFt: $773.56 / sqft
Listing ID: 1065624
Listing Status: Active
Lot Description: Few Trees
Lot Dimensions: 225.0 ft x 326.0 ft
Lot SqFt: 143,748 sqft
Parking: Additional Parking and Garage
Pool: No
Possession: Close Of Escrow
Private Pool: No
Property Type: Residential
Residential Sub-Type: Townhouse
Rooms: Bathroom 2, Bathroom 3, Dining Room, Kitchen, Living Room and Primary Bedroom