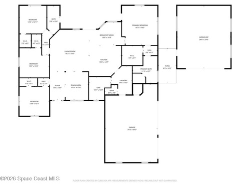
Located in the exclusive Hidden Oaks community of Titusville, this four-bedroom, 2.5-bath residence offers refined design and everyday luxury. The open floor plan with high ceilings creates a bright, spacious feel. Guest bedrooms provide generous closet space, and a versatile flex room functions as an oversized pantry, office, gym, or storage.The primary suite is a private retreat featuring added built-in storage and an oversized walk-in closet with a custom mahogany storage system and reinforced concrete construction with discreet safe-room features.The kitchen, updated in 2020, showcases cherry wood cabinetry with soft-close features and a gas range.Additional highlights include a saltwater pool with a pool-accessible guest bath, a paved circular driveway, and an oversized attached three-car garage. A climate-controlled detached garage offers epoxy flooring, workspace, extended door height, and 240V power. Low HOA completes this exceptional offering.
Essential Information
Year Built: 2015
Price: $725,000
Property Type: Residential
Area: 2,671 sqft.
Country: USA
City: Titusville
Bedrooms: 4
Bathrooms: 3.00
Additional Property Info
Assoc/HOA Contact: Hidden Oaks HOA
Community Fees: No
Construction: Block, Concrete and Stucco
Contingent: Active Under Contract
Cooling: Central Air
Equipment/Appliances: Dishwasher, Dryer, Gas Cooktop, Gas Water Heater, Microwave, Refrigerator and Washer
Furnished: Unfurnished
Heat: Central
List Price/SqFt: $271.43 / sqft
Listing ID: 1066194
Listing Status: Active Under Contract
Lot Description: Wooded
Lot SqFt: 22,651.20 sqft
Parking: Circular Driveway, Garage and Garage Door Opener
Pool: Yes
Pool Features: In Ground, Salt Water and Screen Enclosure