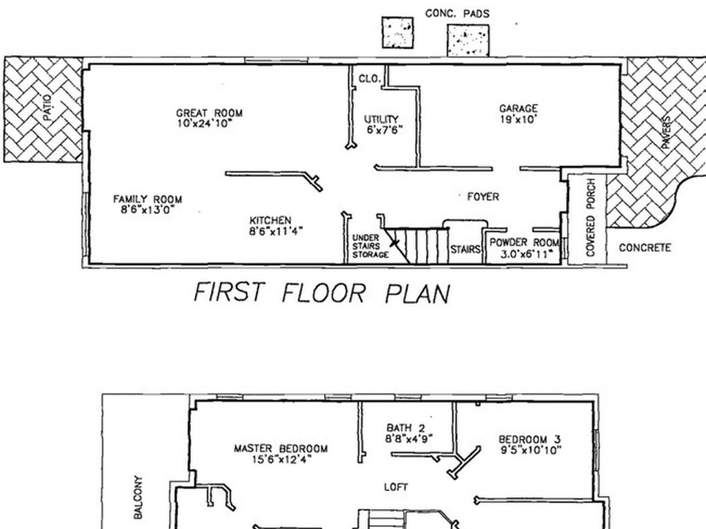
Beach Living at Its Best! 🏖️Looking for that perfect blend of coastal chill and modern comfort? This well maintained 3-bedroom, 2.5-bath end-unit townhouse puts you exactly where you want to be. Located just one block from the sand, you can practically smell the salt air from your front door!The SpaceThis isn't your average townhome. Being an end unit, you get extra privacy and natural light. The Primary Suite: Your own personal sanctuary. It features a spacious walk-in closet and a spa-like ensuite with both a soaking tub and a separate shower. The best part? Step directly out onto your private balcony to enjoy the breeze.Forget the beach-day parking struggle. You've got an attached 1-car garage plus plenty of off-street parking for guests.You are truly in the heart of the action.Steps to the Cocoa Beach Pier: Grab a cocktail, watch the surfers, or cast a line. The port is a few minutes away.
Essential Information
Year Built: 2000
Price: $439,000
Property Type: Residential
Area: 1,674 sqft.
Country: USA
City: Cocoa Beach
Bedrooms: 3
Bathrooms: 3.00
Additional Property Info
Assoc/HOA Contact: TOWNHOMES OF VILLAS BY THE SEA CONDO
Association Fee Included: Maintenance Structure and Trash
Community Fees: No
Construction: Block, Concrete and Stucco
Cooling: Central Air
Dwelling View: Other
Equipment/Appliances: Dishwasher, Disposal, Dryer, Electric Oven, Electric Range, Electric Water Heater, Microwave, Refrigerator and Washer
Exterior Features: Balcony and Storm Shutters
Floor: Carpet and Tile
Furnished: Negotiable
Heat: Central and Electric
Interior Features: Ceiling Fan(s), Central Vacuum, Entrance Foyer, Primary Bathroom -Tub with Separate Shower and Walk-In Closet(s)
List Price/SqFt: $262.25 / sqft
Listing ID: 1066478
Listing Status: Active
Lot Description: Sprinklers In Front and Sprinklers In Rear
Lot SqFt: 3,485 sqft
Parking: Additional Parking, Attached, Garage, Garage Door Opener and Parking Lot
Pet Restrictions: Cats OK, Dogs OK and Number Limit