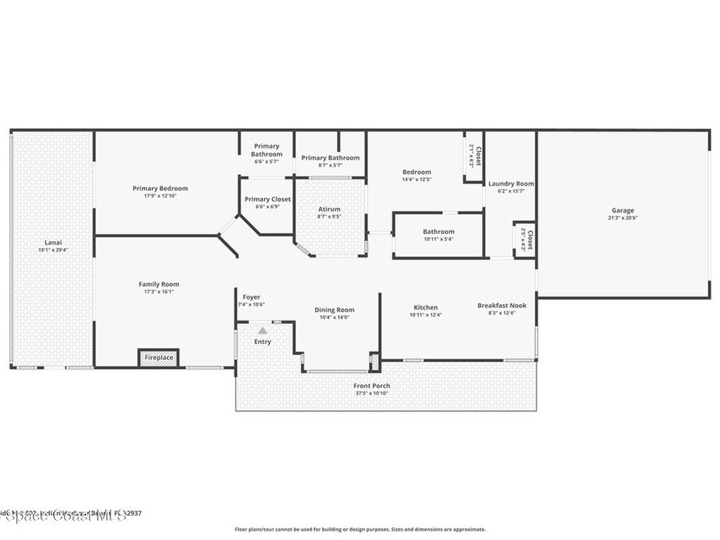
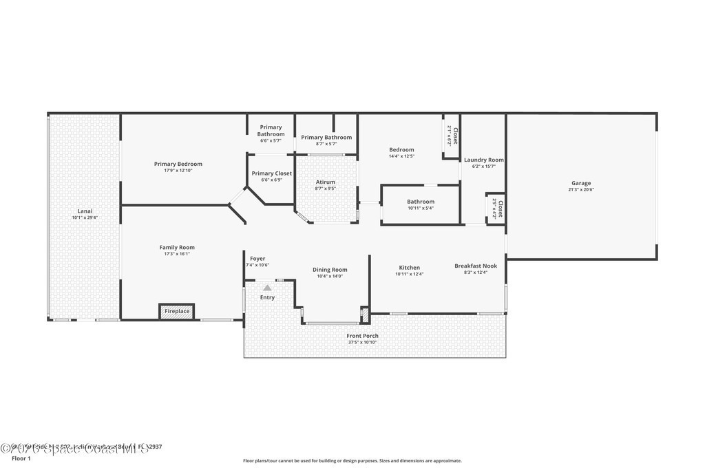
One-story corner-unit home in the desirable Parkside Place community, backing into lush Gleason Park with no rear neighbors, adds privacy, abundant natural light, and serene green views. This 2-bedroom, 2-bath residence with a 2-car garage presents a rare opportunity to create your own coastal retreat while benefiting from major big-ticket improvements, including a new roof (2023) and a new exterior A/C unit (2023). Enjoy the ease of single-level living and the uncommon advantage of open space behind the home. Residents enjoy resort-style amenities including a community pool, spa, sauna, tennis courts, and pickleball courts. Ideally located just minutes from the beach, Publix, shopping, and restaurants, this park-adjacent home offers an exceptional blend of privacy, location, lifestyle, and long-term potential. Whether seeking a primary residence, a second home, or an investment opportunity, this Parkside Place corner unit delivers comfort, convenience, and coastal charm.
Essential Information
Year Built: 1987
Price: $335,000
Property Type: Residential
Area: 1,515 sqft.
Country: USA
City: Indian Harbour Beach
Bedrooms: 2
Bathrooms: 2.00
Additional Property Info
Assoc/HOA Contact: Parkside Place Atmos Living Mgmt
Association Fee Included: Cable TV, Insurance, Internet, Maintenance Grounds and Pest Control
Community Fees: No
Construction: Frame and Stucco
Cooling: Central Air and Electric
Equipment/Appliances: Dishwasher, Dryer, Electric Cooktop, Electric Range, Microwave, Refrigerator and Washer
Exterior Features: Courtyard
Fireplace: Gas
Floor: Carpet and Tile
Furnished: Unfurnished
Heat: Central and Electric
Interior Features: Ceiling Fan(s), Eat-in Kitchen, Pantry, Primary Bathroom - Shower No Tub, Split Bedrooms, Vaulted Ceiling(s), Walk-In Closet(s) and Wet Bar
List Price/SqFt: $221.12 / sqft
Listing ID: 1066627
Listing Status: Pending
Lot Description: Corner Lot
Lot SqFt: 1,742 sqft
Parking: Additional Parking, Attached, Garage, Garage Door Opener and Guest
Pet Restrictions: Cats OK, Dogs OK, Number Limit and Yes
Pets: Cats OK, Dogs OK, Number Limit and Yes
Pool: No
Possession: Close Of Escrow
Private Pool: No
Property Type: Residential
Rental Restrictions: 1 Year
Residential Sub-Type: Townhouse
Road Surface: Asphalt
Roof: Tile
Showing: Appointment Only,Lockbox,No Sign,Showing Service