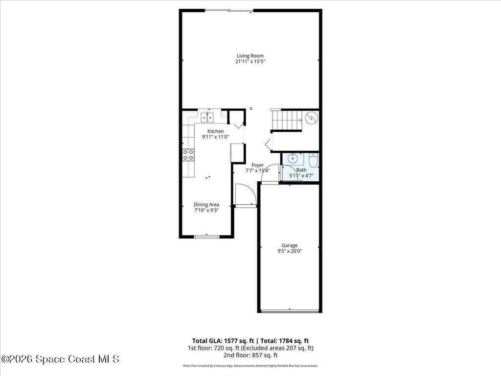
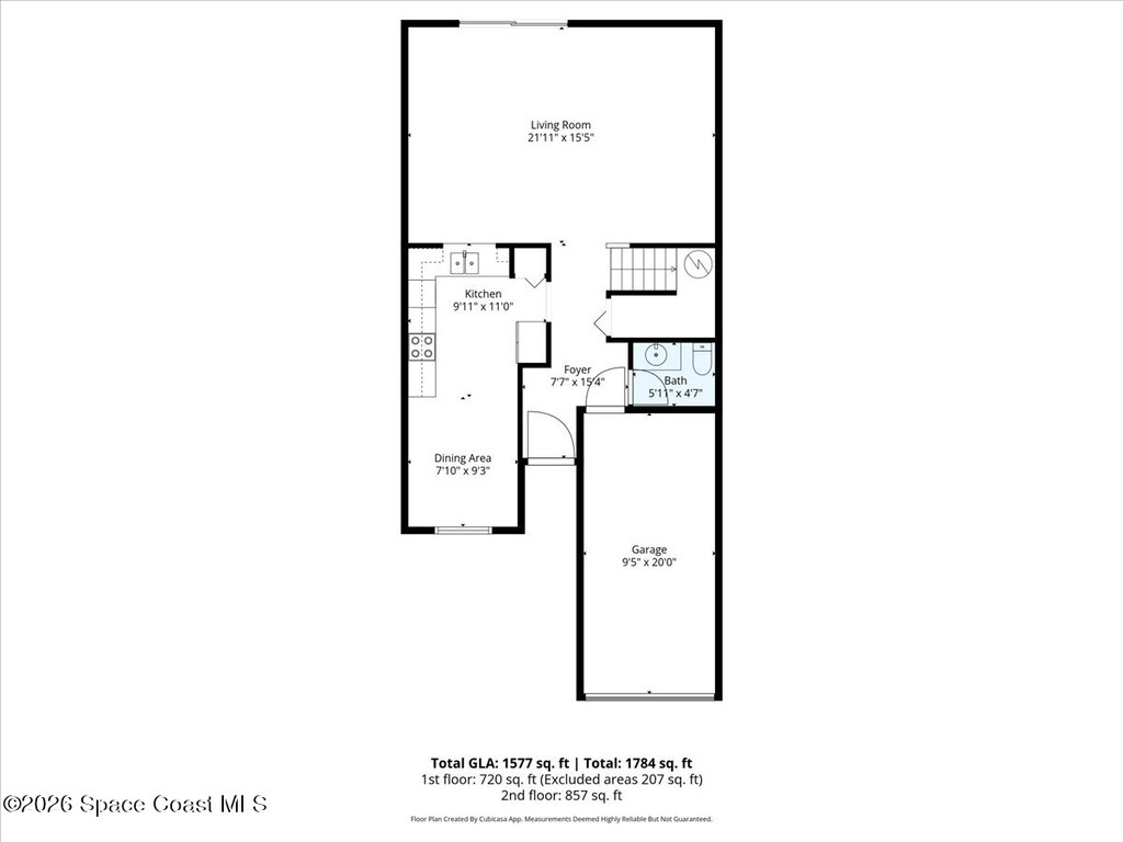
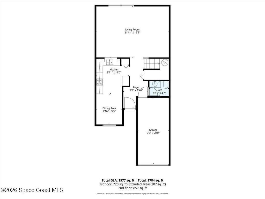
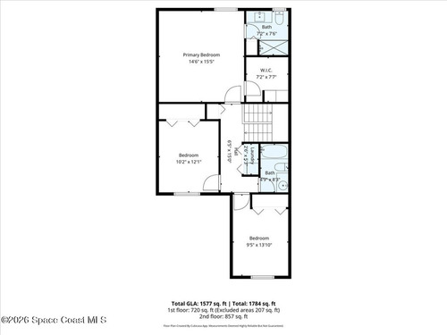
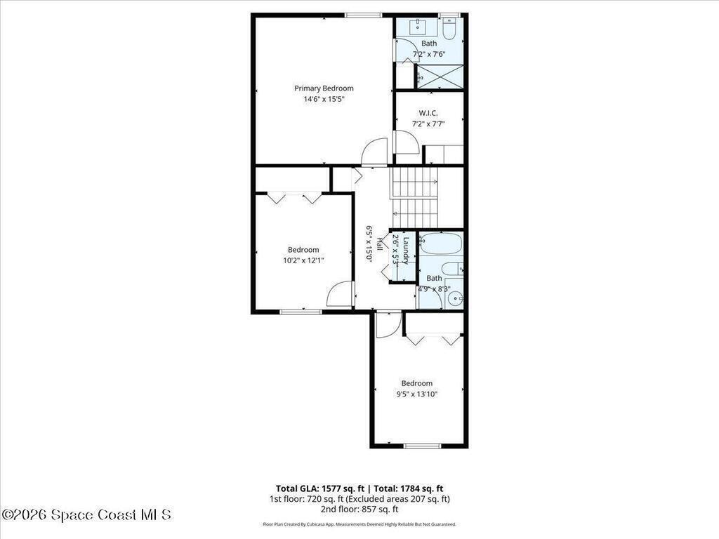
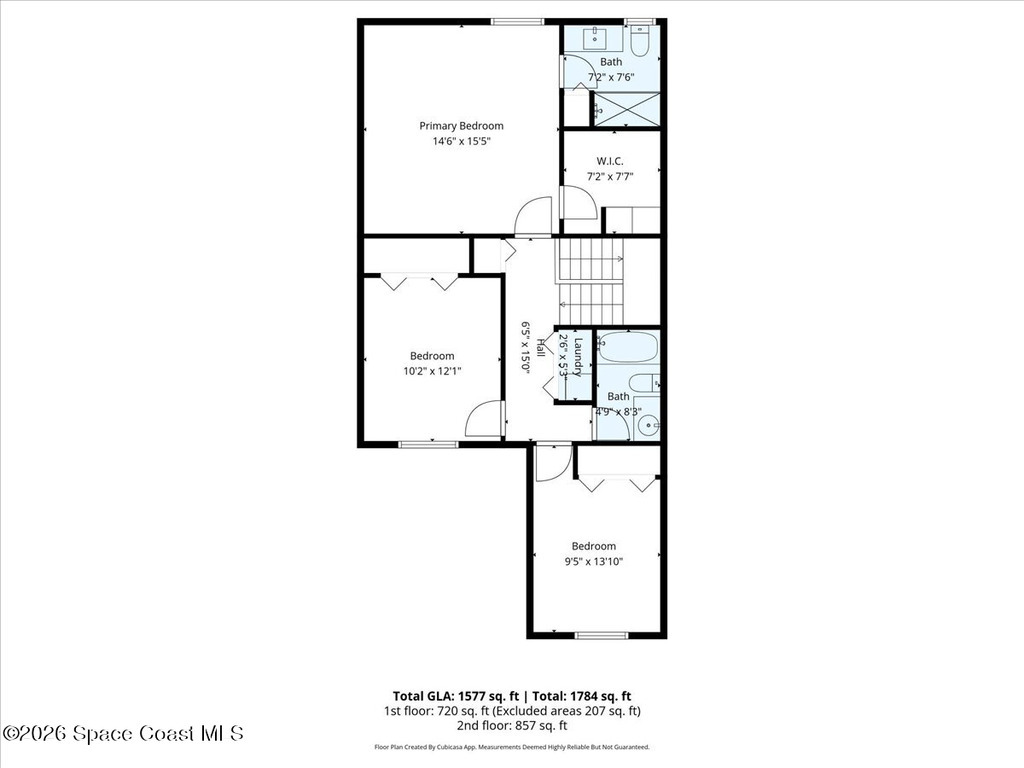
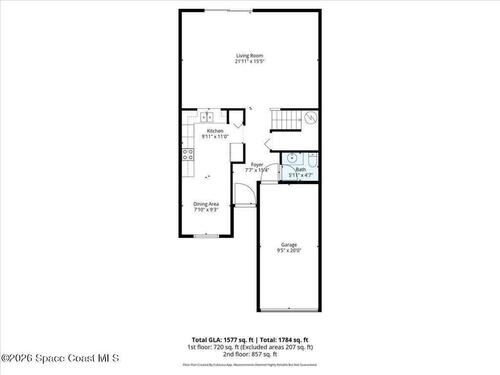
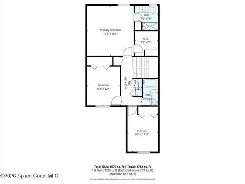
Well maintained townhome in South Harbor Estates close to all the amenities beachside, A rated schools, in a quiet neighborhood. Spacious living downstairs with a large family room and expansive eat in kitchen. Solid wood cabinets, granite countertops, pantry and some stainless-steel appliances. Sliding glass doors lead to an outdoor yard. Half bathroom just off the entryway and garage. Upstairs is private with three bedrooms, two bathrooms, and laundry room for convenience. The primary bedroom is generously sized with an ensuite bathroom with walk in shower and huge walk-in closet. High ceilings maximize the light. Community includes pool. lawn, landscape, insurance, pest control, exterior painting and irrigation. Truly low maintenance living!
Essential Information
Year Built: 1990
Price: $375,000
Property Type: Residential
Area: 1,587 sqft.
Country: USA
City: Indian Harbour Beach
Bedrooms: 3
Bathrooms: 3.00
Additional Property Info
Assoc/HOA Contact: South Harbor Estates
Association Fee Included: Insurance, Maintenance Grounds and Pest Control
Community Fees: No
Construction: Block and Stucco
Contingent: Active Under Contract
Cooling: Central Air and Electric
Equipment/Appliances: Dishwasher, Electric Range, Electric Water Heater, ENERGY STAR Qualified Dishwasher, ENERGY STAR Qualified Freezer, ENERGY STAR Qualified Refrigerator and Microwave
Floor: Carpet and Tile
Furnished: Unfurnished
Green Energy Feature: Appliances,Construction,Exposure/Shade,HVAC
Heat: Central, Electric and Heat Pump
Interior Features: Ceiling Fan(s), Eat-in Kitchen, Open Floorplan, Pantry, Vaulted Ceiling(s) and Walk-In Closet(s)
List Price/SqFt: $236.29 / sqft
Listing ID: 1066991
Listing Status: Active Under Contract
Lot Description: Corner Lot
Lot SqFt: 2,614 sqft
Parking: Attached, Garage, Guest and Off Street
Pet Restrictions: Cats OK, Dogs OK and Number Limit