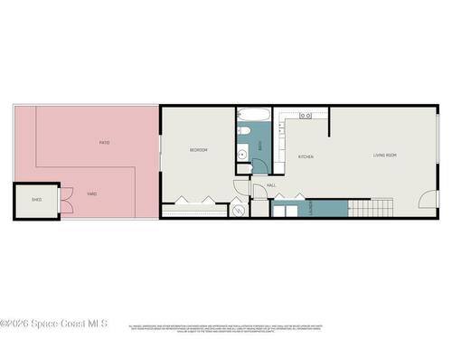
Enjoy coastal living across the street from the ocean in this super clean, move-in ready townhome with no HOA and short-term rentals allowed. Located directly across the street from the beach, this light-filled residence features vaulted ceilings, abundant natural light, and a functional layout with 2 bedrooms and 2.5 bathrooms. Impact windows and doors (2014/2015, plus a hurricane screen at the front door, provide added peace of mind. A new roof in 2025 enhances long-term value. The washer and dryer convey for added convenience. An anchored storage shed on a concrete pad offers space for beach toys, bikes, and gear. Ideal as a primary residence, second home, or income-producing beach retreat, this townhome delivers flexibility, durability, and an unbeatable ocean-side location.
Essential Information
Year Built: 1987
Price: $319,000
Property Type: Residential
Area: 1,360 sqft.
Country: USA
City: Cape Canaveral
Bedrooms: 2
Bathrooms: 2.00
Additional Property Info
Community Fees: No
Construction: Fiber Cement and Frame
Contingent: Active Under Contract
Cooling: Central Air
Equipment/Appliances: Dishwasher, Electric Oven, Electric Range, Microwave and Refrigerator
Floor: Carpet, Other and Tile
Furnished: Unfurnished
Heat: Central
Interior Features: Breakfast Nook, Ceiling Fan(s), Pantry, Primary Bathroom - Tub with Shower, Split Bedrooms and Vaulted Ceiling(s)