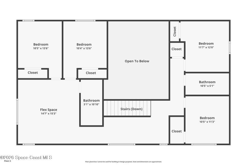
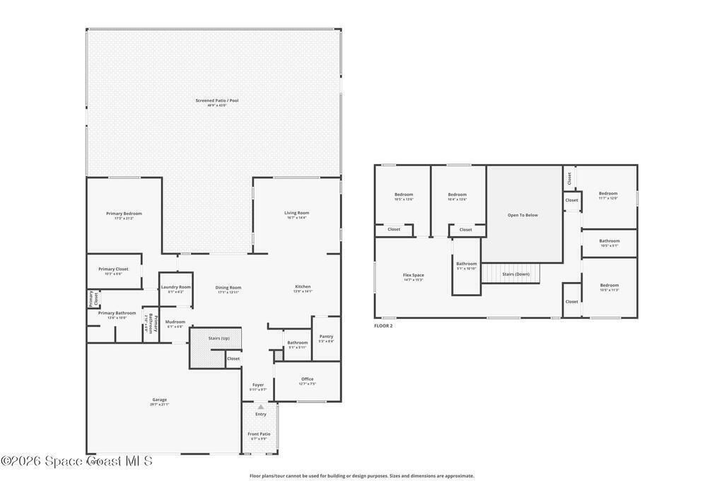
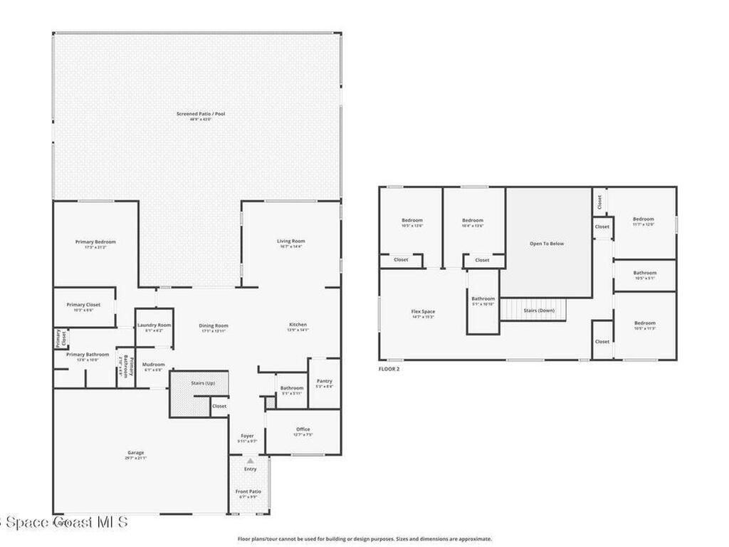
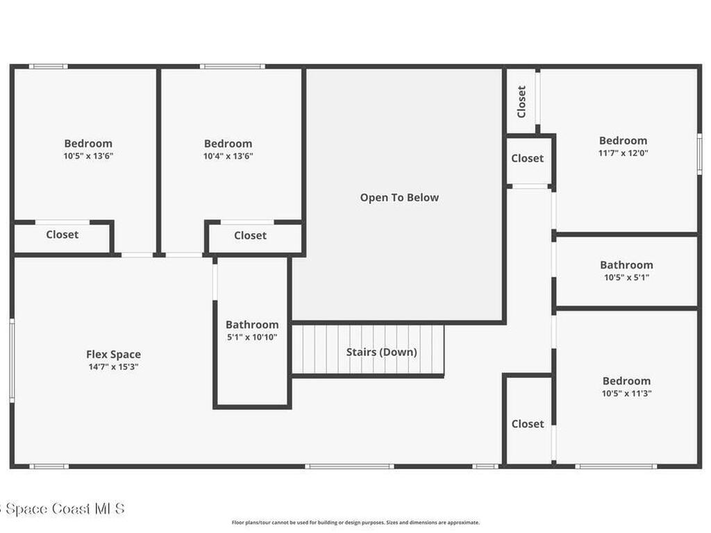
Built in 2024 with over $150,000 in upgrades, this exceptional two-story home is located in the gated Courtyard at Waterstone community in Palm Bay. Offering nearly 2,800 sq ft, this 5-bedroom, 3.5-bath residence features a 3-car garage, a private home office, and a spacious upstairs loft. The open-concept design showcases a gourmet kitchen with quartz countertops, oversized island, sleek white cabinetry, and designer lighting. Upgraded tile flows throughout the main living areas, while carpeted bedrooms provide added comfort. Custom accent walls throughout the home add a modern, upscale touch. Step outside to your private backyard retreat featuring a fully screened, heated pool and spa overlooking a serene lake and beautifully landscaped views. Conveniently located near the future Emerald Lakes master-planned development, this home combines modern construction, luxury upgrades, and long-term growth in a highly desirable location.
Essential Information
Year Built: 2024
Price: $700,000
Property Type: Residential
Area: 2,751 sqft.
Country: USA
City: Palm Bay
Bedrooms: 5
Bathrooms: 4.00
Additional Property Info
Assoc/HOA Contact: Courtyards At Waterstone
Association Fee Included: Maintenance Grounds
Community Fees: No
Construction: Block, Concrete, Frame, Stone and Stucco
Cooling: Central Air and Electric
Equipment/Appliances: Dishwasher, Disposal, Dryer, Electric Cooktop, Electric Range, Microwave, Refrigerator, Washer and Water Softener Owned
Exterior Features: Storm Shutters
Floor: Carpet and Tile
Furnished: Unfurnished
Heat: Central and Electric
Interior Features: Breakfast Bar, Butler Pantry, Ceiling Fan(s), Eat-in Kitchen, Entrance Foyer, His and Hers Closets, Kitchen Island, Open Floorplan, Pantry, Primary Bathroom - Shower No Tub, Primary Downstairs, Split Bedrooms and Walk-In Closet(s)
List Price/SqFt: $254.45 / sqft
Listing ID: 1067655
Listing Status: Active
Lot Description: Sprinklers In Front and Sprinklers In Rear
Lot SqFt: 8,276 sqft
Parking: Attached, Garage and Garage Door Opener
Pet Restrictions: Yes
Pets: Yes
Pool: Yes
Pool Features: Electric Heat, Heated, In Ground, Salt Water, Screen Enclosure and Waterfall