Completely remodeled oceanfront townhome-style retreat in the heart of Melbourne Beach, offering sweeping Atlantic views and an exceptional coastal setting. Located within one of the few true oceanfront communities along the Space Coast that allows short-term rentals, this property presents a compelling opportunity for both refined personal use and income potential. Renovated in 2024 with a new kitchen featuring soft-close KraftMaid cabinetry, expansive pantry, stainless steel appliances, new flooring, updated bathrooms, lighting, fans, and window treatments throughout. Major upgrades include a new HVAC system (2023), updated electrical panel, wiring for a whole-house generator, and electric vehicle charging capability. The first-floor bedroom and bath open directly to the beach, while the primary suite offers dual closets and a beautifully updated bath. Community features newer tile roofs and rebuilt beach crossovers. A rare blend of oceanfront lifestyle and turnkey condition.
Essential Information
Year Built: 1978
Price: $690,000
Property Type: Residential
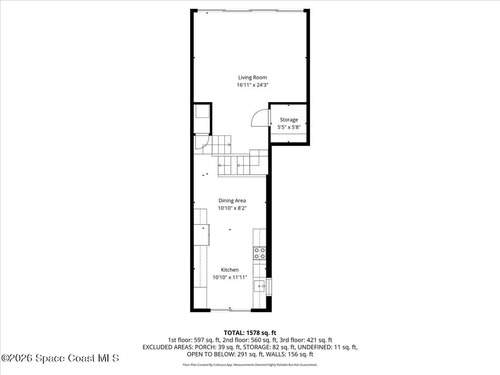
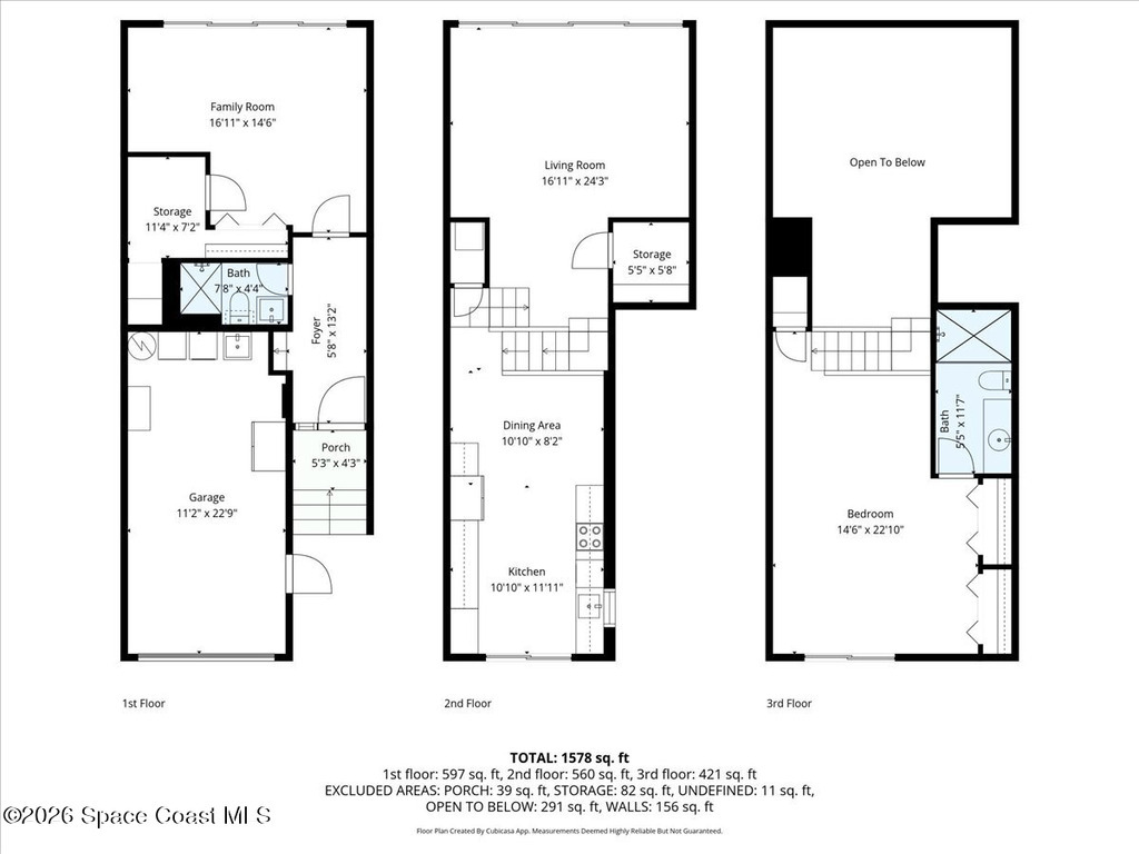
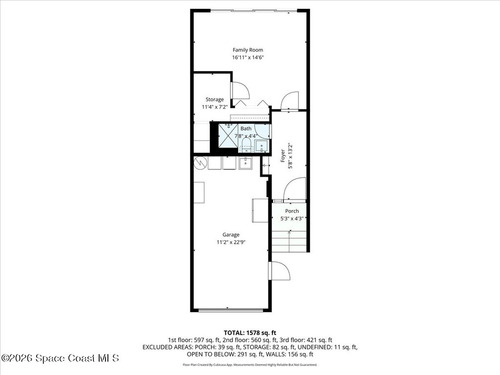
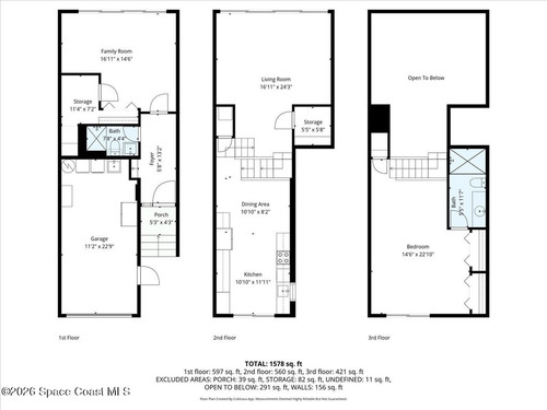
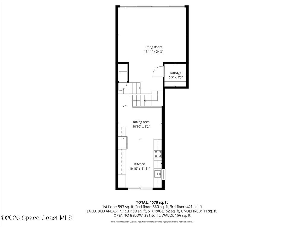
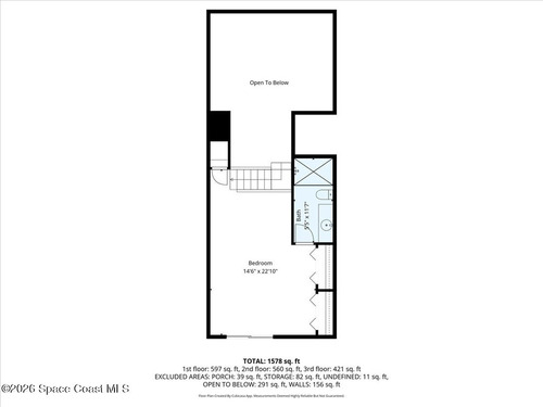
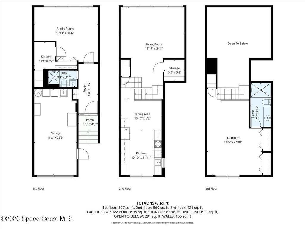
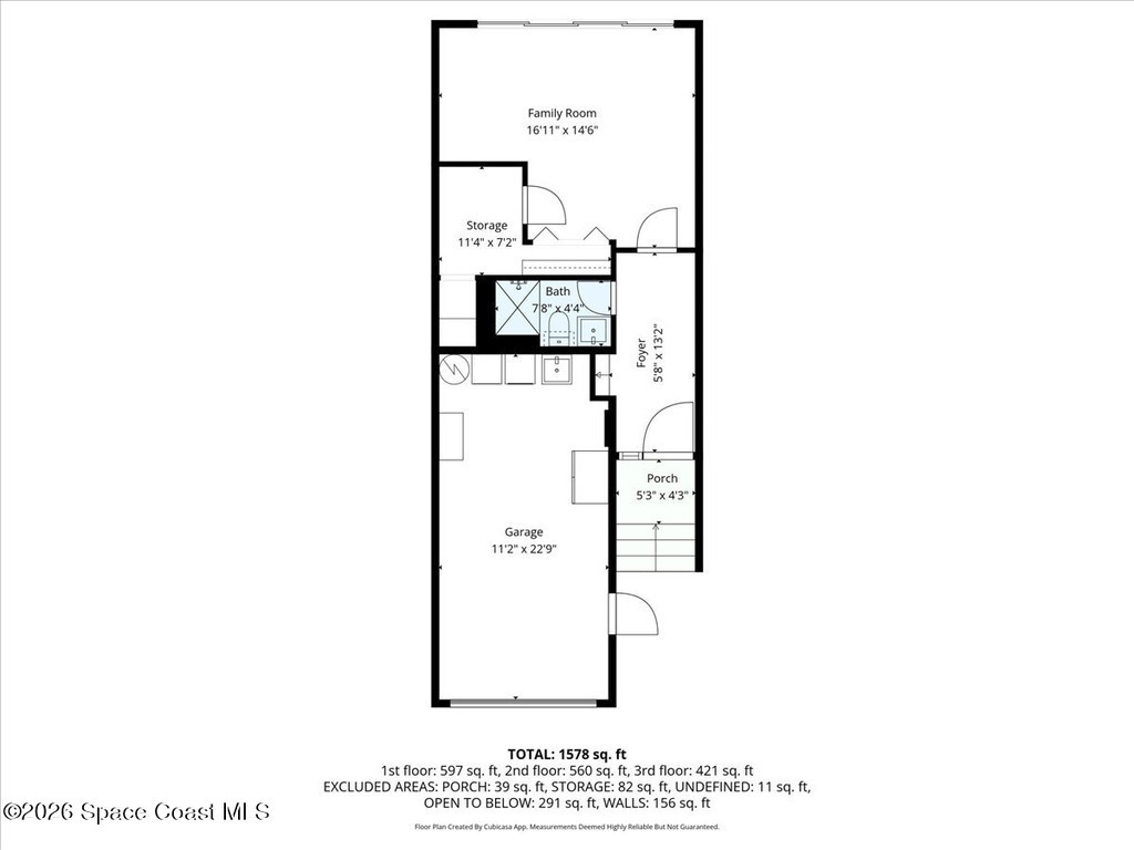
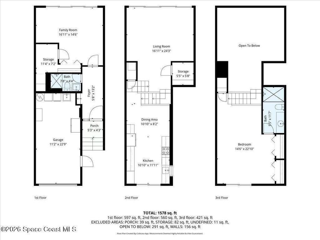
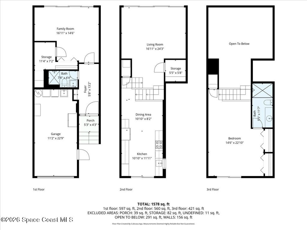
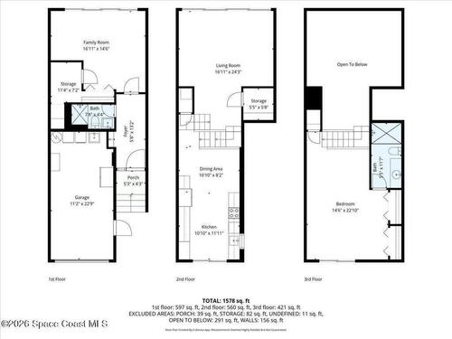
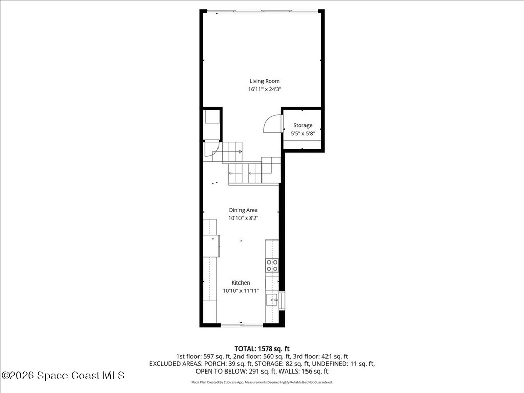
Area: 1,600 sqft.
Country: USA
City: Melbourne Beach
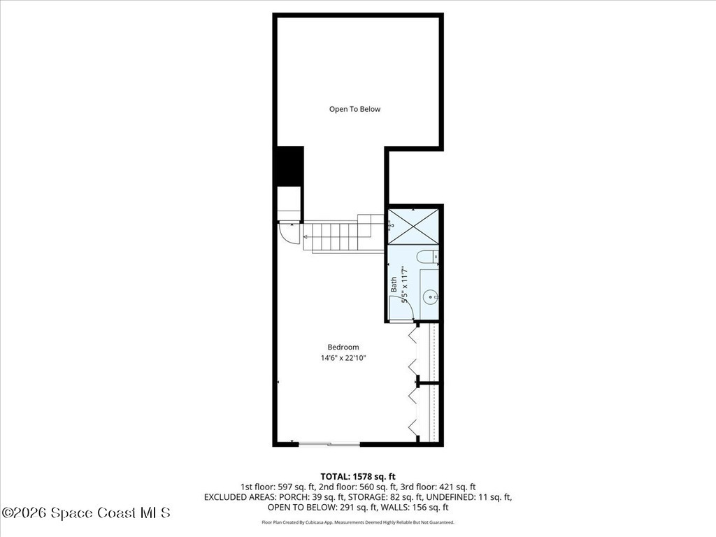
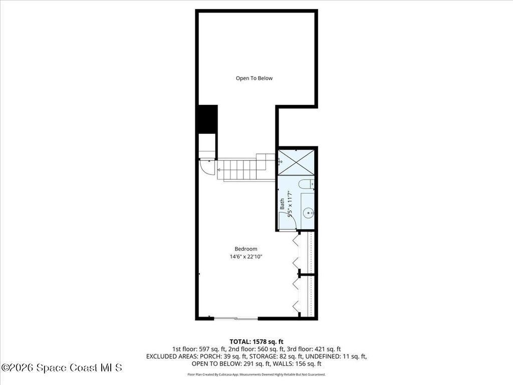
Bedrooms: 2
Bathrooms: 2.00
Additional Property Info
Assoc/HOA Contact: Opus 21 Townhouse Condo
Association Fee Included: Insurance
Community Fees: No
Construction: Block, Concrete and Stucco
Cooling: Central Air
Dwelling View: Beach, Ocean and Water
Equipment/Appliances: Dishwasher, Electric Range, Electric Water Heater, Microwave and Refrigerator
Exterior Features: Balcony
Floor: Carpet, Laminate and Wood
Furnished: Unfurnished
Heat: Central
Interior Features: Ceiling Fan(s), Guest Suite, His and Hers Closets, Open Floorplan, Primary Bathroom - Tub with Shower, Primary Downstairs, Split Bedrooms and Vaulted Ceiling(s)
Land Site Description: Oceanfront
List Price/SqFt: $431.25 / sqft
Listing ID: 1068472
Listing Status: Active
Lot Description: Sprinklers In Front and Sprinklers In Rear
Lot Dimensions: 266x461
Lot SqFt: 5,663 sqft
Parking: Attached, Garage and Guest
Pet Restrictions: Yes
Pets: Yes
Pool: No
Possession: Close Of Escrow
Private Pool: No
Property Type: Residential
Rental Restrictions: 1 Week
Residential Sub-Type: Condo
Road Surface: Asphalt
Roof: Tile
Showing: Appointment Only,Lockbox,Showing Service
Sold Terms Code: Cash,Conventional,FHA
SqFt - Living: 1,600 sqft
State/Province: FL
Status: Active
Status Change Date: Wednesday, February 4th, 2026
Street Direction: S
Street Name: Highway A1a
Street Number: 2953
Subdivision: Opus 21 Townhouse Condo
Tax Year: 2025
Taxes: $7,337.12
Total Floors in Building: 3
Total Floors/Stories: 3
Total Garage Spaces: 1
Unit Number: 7-B
Utilities: Cable Connected, Electricity Connected, Sewer Connected and Water Connected