OCEANFRONT- BEACHFRONT- NO HOA!Don't miss this incredible opportunity. Located in the highly desirable area of Vero Beach, this Single-family home with 3 bedrooms, 2 full baths, and a large backyard features an open floor plan, tile flooring throughout, impact windows, newer appliances and a circular driveway. Enjoy OCEAN VIEWS from the main living areas and primary bedroom suite. The third bedroom suite provides flexibility for use as a guest room or home office. Washer and dryer are included. Roof- 8 years, HVAC and Water Heater approximately 5 years old. Beach crossover is located directly next to the property. Conveniently located near many golf courses and country clubs, the Palm Beaches, Melbourne, Cocoa Beach, Mckee Botanical Gardens, the Kennedy Space Center, Melbourne International Airport, Orlando International Airport, Disney World, and other world-class attractions.
Essential Information
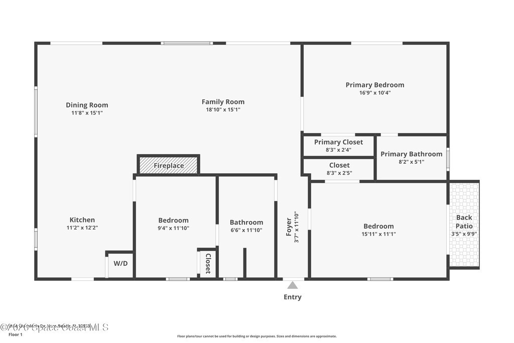
Year Built: 1971
Price: $1,949,999
Property Type: Residential
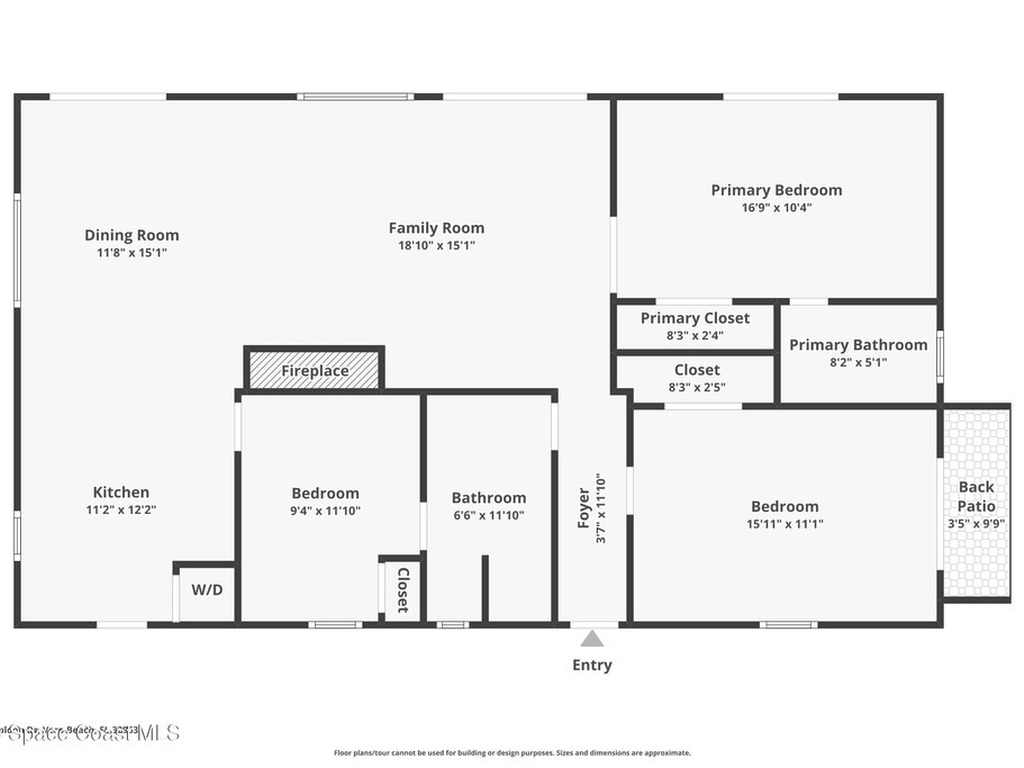
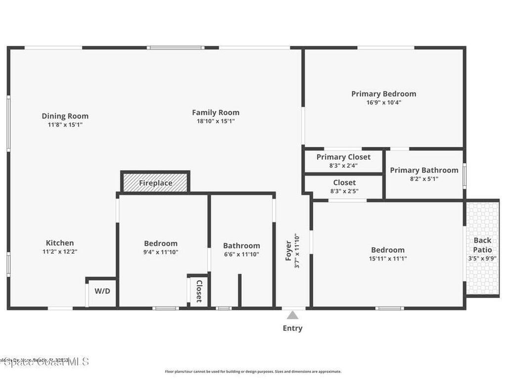
Area: 1,269 sqft.
Country: USA
City: Vero Beach
Bedrooms: 3
Bathrooms: 2.00
Additional Property Info
Community Fees: No
Construction: Frame
Cooling: Central Air and Electric
Dwelling View: Beach, Ocean and Water
Equipment/Appliances: Dishwasher, Disposal, Electric Oven, Electric Range, Electric Water Heater and Refrigerator
Exterior Features: Impact Windows
Floor: Tile
Furnished: Unfurnished
Heat: Central and Electric
Interior Features: Ceiling Fan(s), Open Floorplan, Primary Bathroom - Tub with Shower and Primary Downstairs