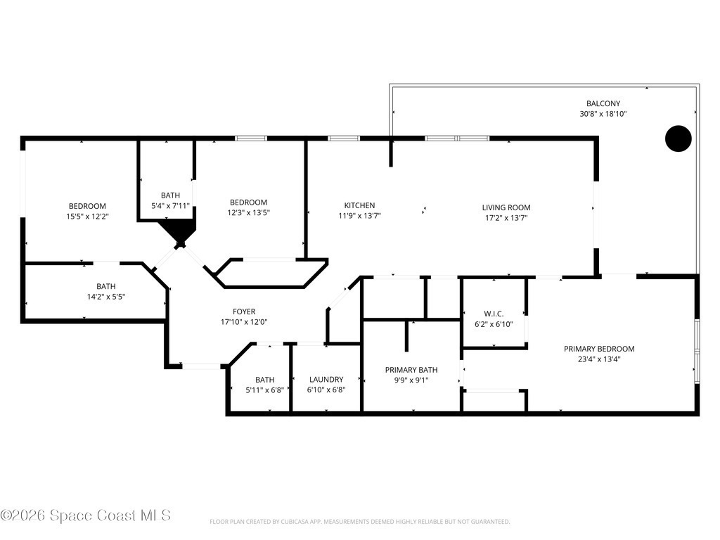
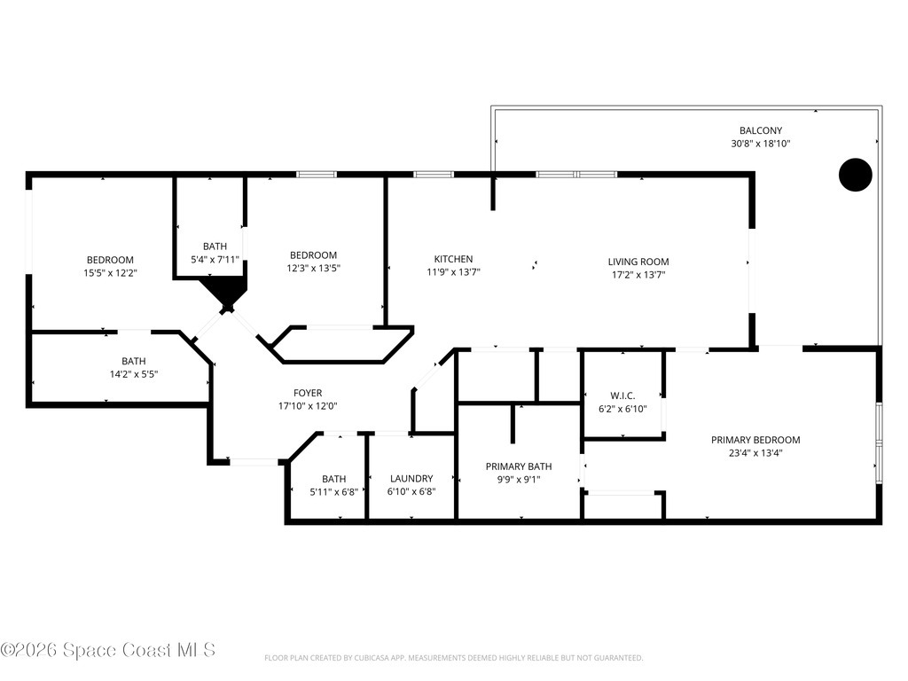
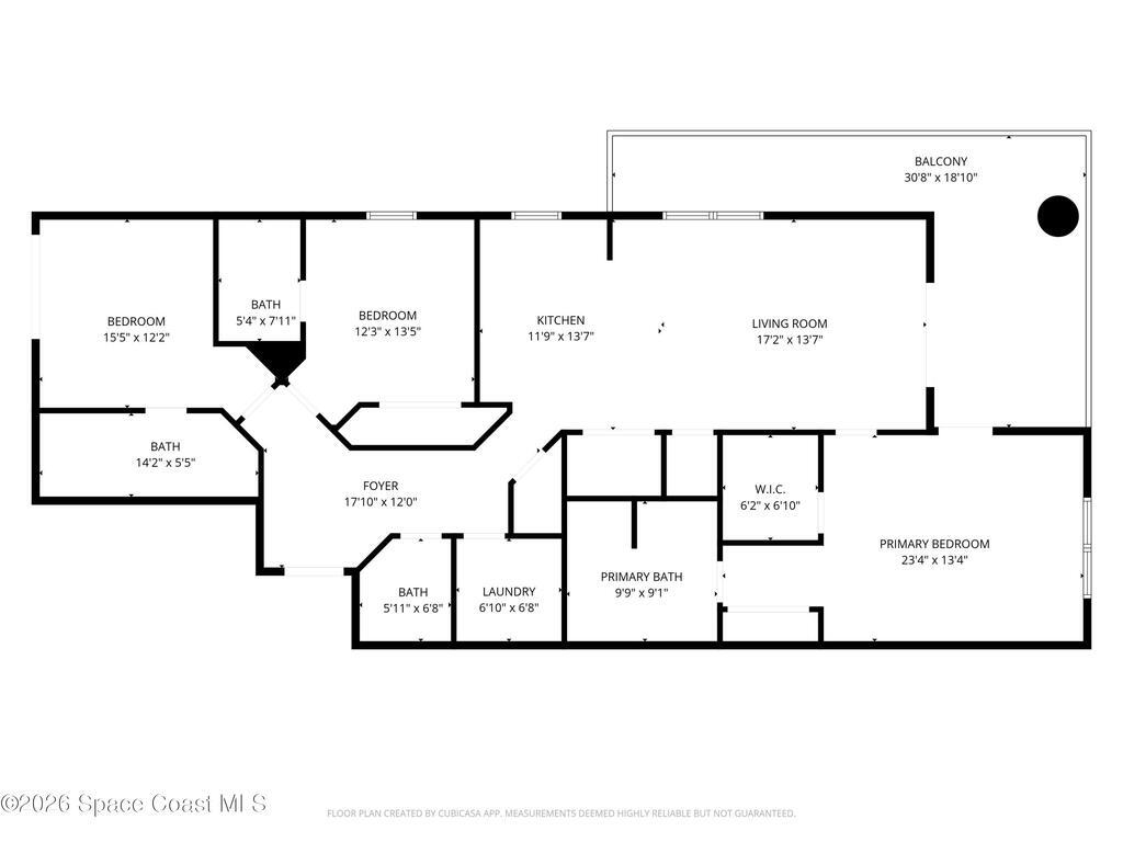
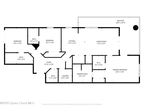
Rare Top Floor Corner Unit! The front bedroom has its own private balcony and then you have a second wrap around balcony with access from the living room and primary bedroom with views of both the Sykes Creek and Indian River. Each bedroom has its own en-suite with an extra half bath in the hall for guests. Impact windows throughout for peace of mind and energy efficiency. Spacious Primary bedroom with a walk-in closet, primary bathroom that has a double vanity and a soaking tub with a separate shower. This unit comes with one designated parking space in the garage, and open parking outside. River Fly-In is only a two year old building with many amenities from a community pool, club house with a full kitchen, movie theater, gym, sauna, and many more amenities!
Essential Information
Year Built: 2024
Price: $625,000
Property Type: Residential
Area: 1,632 sqft.
Country: USA
City: Merritt Island
Bedrooms: 3
Bathrooms: 4.00
Additional Property Info
Assoc/HOA Contact: River Fly-In Condos
Association Fee Included: Internet, Maintenance Grounds, Maintenance Structure, Security, Sewer, Trash and Water
Community Fees: No
Construction: Block, Concrete and Stucco
Cooling: Central Air and Electric
Dwelling View: Creek/Stream, Protected Preserve, River and Water
Equipment/Appliances: Dishwasher, Disposal, Dryer, Electric Range, Electric Water Heater, Microwave, Refrigerator and Washer
Exterior Features: Balcony and Impact Windows
Floor: Tile
Furnished: Unfurnished
Heat: Central and Electric
Interior Features: Ceiling Fan(s), Eat-in Kitchen, Kitchen Island, Open Floorplan, Pantry, Primary Bathroom -Tub with Separate Shower, Smart Thermostat, Split Bedrooms and Walk-In Closet(s)
List Price/SqFt: $382.97 / sqft
Listing ID: 1069303
Listing Status: Active
Lot Description: Few Trees
Lot SqFt: 4,792 sqft
Parking: Community Structure, Garage and Garage Door Opener
Pet Restrictions: Breed Restrictions and Number Limit
Pets: Breed Restrictions and Number Limit
Pool: No
Possession: Close Of Escrow
Private Pool: No
Property Type: Residential
Rental Restrictions: 3 Days
Residential Sub-Type: Condo
Road Surface: Asphalt,Paved
Security/Safety: Closed Circuit Camera(s), Fire Alarm, Key Card Entry and Secured Lobby